Rusza budowa złotoryjskiego pumptracku. Wczoraj w ratuszu została podpisana umowa z wykonawcą toru dla rowerzystów. Ma być gotowy najpóźniej w czerwcu przyszłego roku.
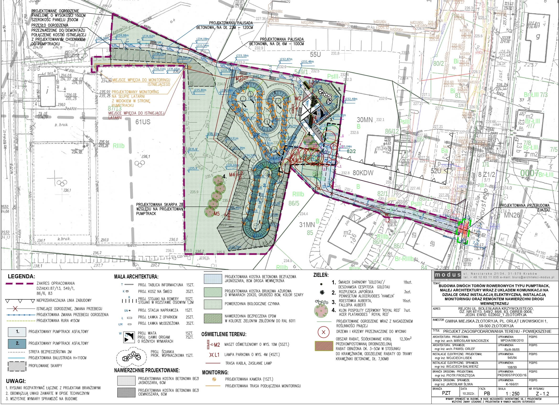
Na działce pomiędzy orlikiem przy ul. Wiosennej i Lidlem powstaną tak naprawdę dwa tory o asfaltowej nawierzchni: krótszy, z niższymi przeszkodami, w owalnym kształcie, z którego bezpiecznie będą mogli korzystać mniej zaawansowani rowerzyści i hulajnogiści, oraz dłuższy, zbudowany na planie trójkąta, dla starszych amatorów tzw. pompowania. Tory będą się składały z muld, band i specjalnie wyprofilowanych zakrętów, które pozwolą rozwijać prędkość bez pedałowania czy odpychania się nogą.
Wybuduje je firma BikeUniverse z Myślenic, która specjalizuje się w tego typu obiektach dla rowerzystów. Działa w całej Polsce (można o tym przeczytać TUTAJ). W tej chwili realizuje pumptracki w pięciu lokalizacjach: w Wiszni Małej koło Trzebnicy, Nowej Rudzie, Czorsztynie, Czajkowie i Białej Podlaskiej, a lada dzień podpisze także umowę na tor w Łowiczu.
Kontrakt z BikeUnivers opiewa na kwotę 1 mln 136 tys. 397 zł. Za te pieniądze wykonawca nie tylko ułoży tory, ale także utwardzi kostką brukową i płytami ażurowymi teren wokół nich, ustawi ławki, stojaki rowerowe, stację naprawczą dla rowerów i ściankę wspinaczkową, zamontuje słupy oświetleniowe oraz zainstaluje monitoring. Do tego zrobi jeszcze nasadzenia zieleni.
– Młodzież z niecierpliwością czeka na ten obiekt, dzieciaki o niego pytają, więc prosimy jak najszybciej zaczynać – mobilizował wykonawcę burmistrz Paweł Kulig, składając wczoraj wraz ze skarbniczką Agnieszką Pogońską podpis pod umową.
BikeUniverse ma czas do 15 czerwca 2026 r. na oddanie pumptracku do użytku. Filip Janiszewski, który podpisał kontrakt w imieniu myślenickiej firmy, zapowiada jednak, że jeśli pogoda nie przeszkodzi, obiekt będzie gotowy wcześniej.
– Roboty ziemne, związane z wyrównaniem terenu i stabilizacją gruntu, chcemy wykonać jeszcze w tym roku. W lutym, może w marcu, gdy nie będzie już zimy i warunki atmosferyczne będą pozwalały na profilowanie terenu, zaczniemy układać tor. Same tory z asfaltowaniem to ok. 3 tygodni pracy, razem z zagospodarowaniem tereny wiosenna część robót powinna zająć do półtora miesiąca, więc całą inwestycję zakończylibyśmy na kilka tygodni przed wakacjami – powiedział w Urzędzie Miejskim w Złotoryi przedstawiciel wykonawcy.
Pumptrack uzupełni kompleks sportowo-rekreacyjny przy ul. Wiosennej. Będzie można do niego dojść chodnikiem z sąsiedniego skateparku. Dojazd będzie z kolei prowadził od ul. Bolesława Krzywoustego.
Przypomnijmy, że w budowie pumptracku pomoże Ministerstwo Sportu i Turystyki, które przekazało naszemu miastu dofinansowanie w wysokości 513 tys. zł w ramach programu Sportowa Polska. Złotoryjski ratusz liczył na to, że obiekt uda się oddać do użytku jeszcze w tegoroczne wakacje. Te ambitne plany pokrzyżowały jednak procedury związane z pozyskaniem dotacji, które trwały dłużej niż początkowo zakładano.












Filtry